Vuokrataan:





Kohdekuvaus
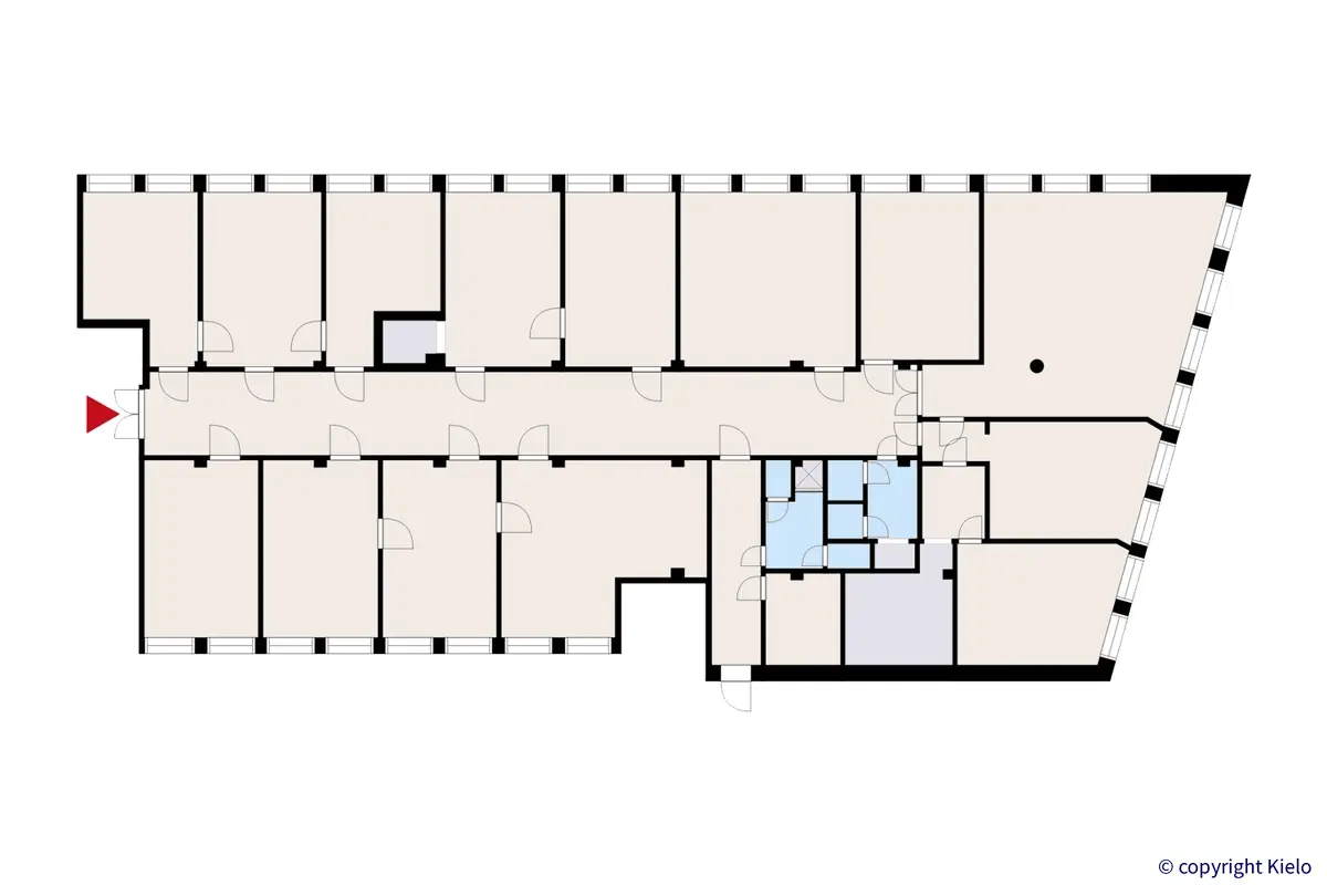
Vuokrattavana tunnetun Saippua Centerin toisesta kerroksesta valoisa toimistotila. Huoneistossa on eri kokoisia toimistohuoneita, omat vessat ja ikkunat kolmeen suuntaan.
Toimitilan tiedot
Kauppatapa
Vuokrataan
Käyntiosoite
Artturinkatu 2, 20200 Turku
Tilatyyppi
toimisto
Pinta-ala
425 m²
Kerros
2. kerros
Vapautuminen
heti vapaa
Kiinteistön palvelut (kaupallinen)
kuntosali
Lähialueen palvelut
ravintola
kuntosali
ruokakauppa
Pysäköintipalvelut
pysäköintialue
Pysäköinti
Autoilijoille on tarjolla runsaasti ilmaista pysäköintitilaa, ja vuokralaisille on mahdollista hankkia sähköautojen latauspisteitä.
Bussipysäkki
440 m
Juna-asema
2,4 km
Lentoasema
14,3 km
Tämän toimitilan vuokraa


Ota yhteyttä
Ota yhteyttä
Yhteydenottolomake