Vuokrataan:






Kohdekuvaus
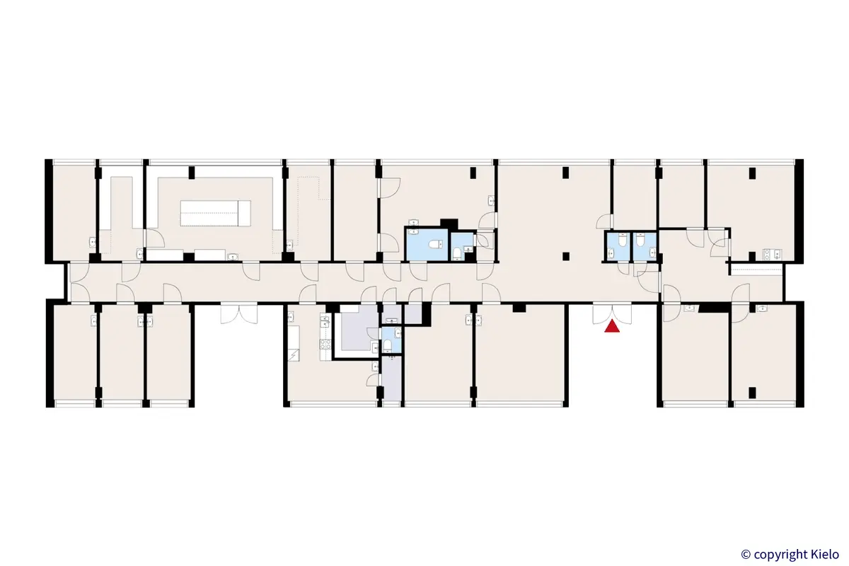
Vuokrataan koko kerroksen siisti, avara ja valoisa toimitila erinomaisella sijainnilla Porin keskustassa. Tilasta löytyy useampi toimisto- sekä neuvotteluhuone, avotilaa sekä WC-tilat. Lähiliikenteen palvelut ovat noin 230 m päässä, Kauppatorilla. Ota yhteyttä ja kysy lisää!
Toimitilan tiedot
Kauppatapa
Vuokrataan
Käyntiosoite
Itäpuisto 11, 28100 Pori
Tilatyyppi
toimisto
Pinta-ala
433 m²
Kerros
4-5 kerros
Vapautuminen
heti vapaa
Kiinteistön palvelut (kaupallinen)
hieroja
Lähialueen palvelut
ravintola
kuntosali
ruokakauppa
kahvila
hotelli
kauppakeskus
lääkäriasema
Pysäköinti
Raitiovaunupysäkki
111 km
Bussipysäkki
110 m
Juna-asema
1,2 km
Lentoasema
4,8 km
Tämän toimitilan vuokraa

Ota yhteyttä
Ota yhteyttä
Yhteydenottolomake