Vuokrataan:





Kohdekuvaus
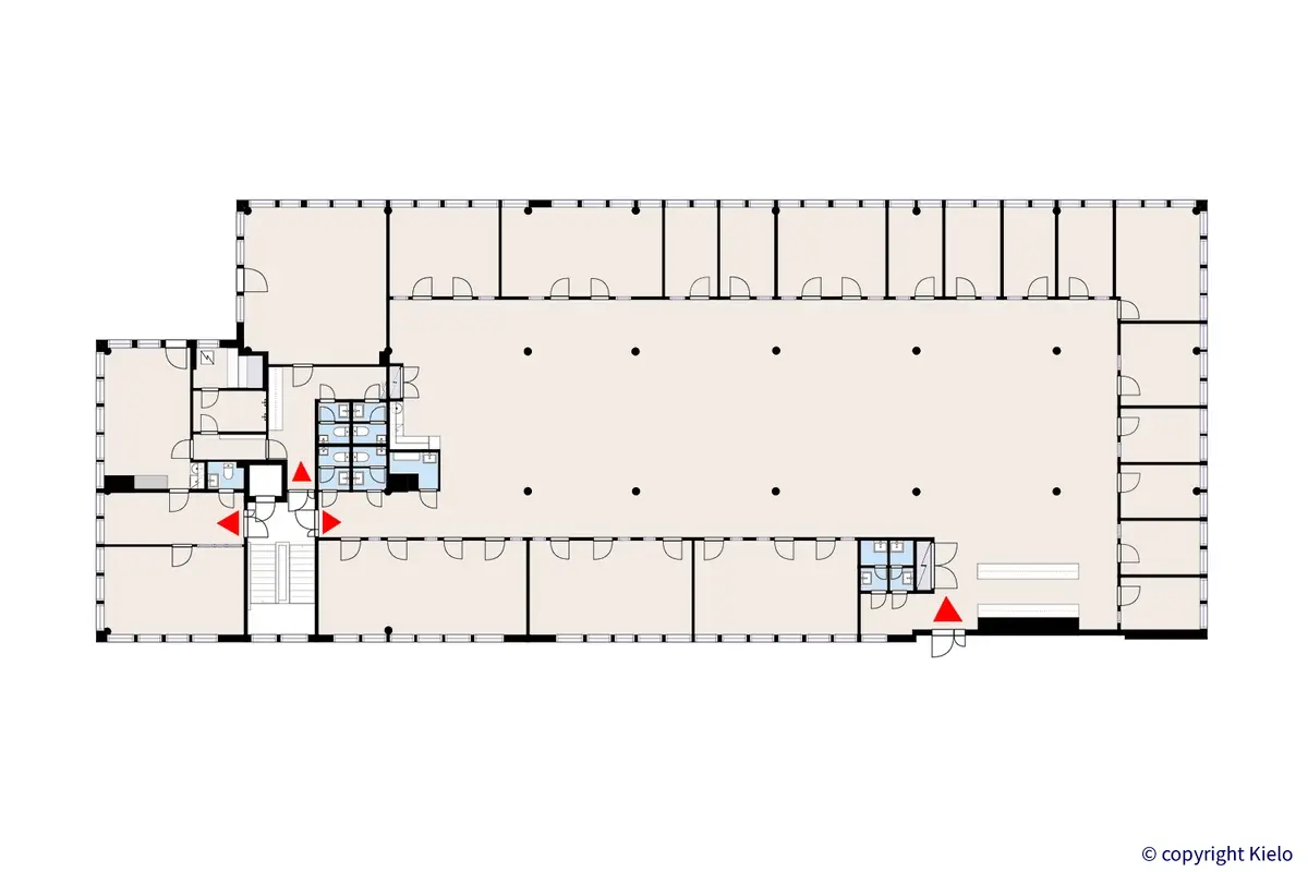
Koko rakennuksen toisen siiven kattava monitilatoimisto isomman yrityksen tarpeisiin. Tilassa on mm. oma sauna, takkahuone sekä koulutustilat. Vuokrattaviin neliöihin lisätään osuus yhteisistä tiloista. Kysy lisää!
Toimitilan tiedot
Kauppatapa
Vuokrataan
Käyntiosoite
Ylistönmäentie 24, 40500 Jyväskylä
Tilatyyppi
toimisto
Pinta-ala
791 m²
Kerros
2. kerros
Vapautuminen
heti vapaa
Lähialueen palvelut
ravintola
Pysäköintipalvelut
pysäköintitalo
Pysäköinti
Talon molemmilla puolilla on parkkialue. Tarjolla lämmityspistokkein varustettuja pysäköintipaikkoja.
Raitiovaunupysäkki
146 km
Bussipysäkki
160 m
Juna-asema
4,0 km
Lentoasema
26 km
Tämän toimitilan vuokraa


Ota yhteyttä
Ota yhteyttä
Yhteydenottolomake