Vuokrataan:










Kohdekuvaus
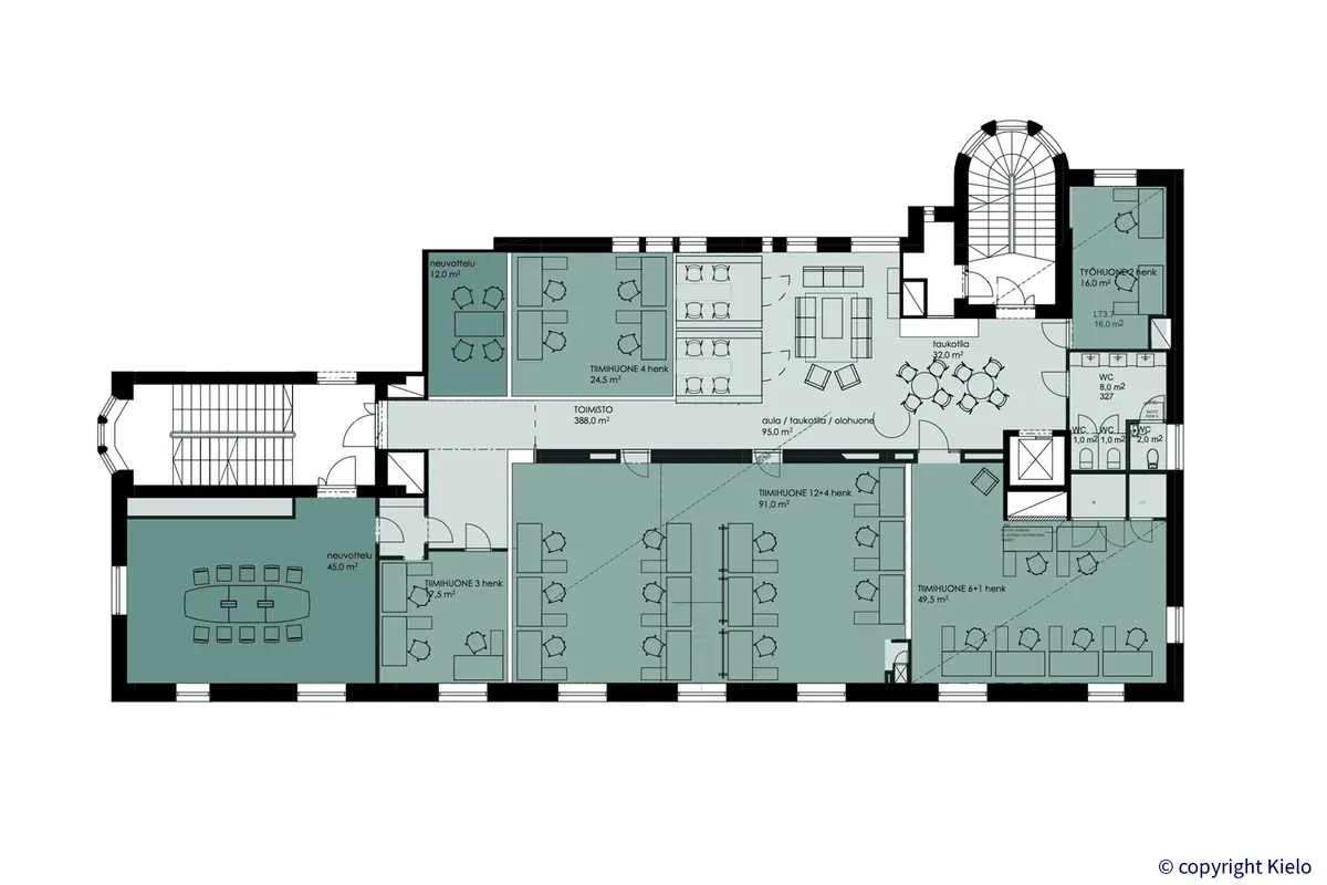
Vuokrattavana näyttävä, valoisa toimistotila, josta upeat näkymät Kirkkopuistoon ja sisäpihalle. Esimerkkisovituksessa 25 työpistettä, 2 neuvotteluhuonetta, vetäytymistiloja, ryhmätyötilaa, loungealue, sekä keittiö- ja sosiaalitilat. Kaksi sisäänkäyntiä, hissi suoraan tilaan. Rakennus sijaitsee kävelykadun varrella, linja-autopysäkit 200 m päässä.
Toimitilan tiedot
Kauppatapa
Vuokrataan
Käyntiosoite
Kauppakatu 18 A, 40100 Jyväskylä
Tilatyyppi
toimisto
Pinta-ala
377 m²
Kerros
3. kerros
Vapautuminen
heti vapaa
Lähialueen palvelut
ravintola
kuntosali
kampaamo/parturi
ruokakauppa
pesula
posti
kahvila
hotelli
lääkäriasema
Pysäköintipalvelut
pysäköintialue
Pysäköinti
Sisäpihalle kaavaillaan sähköauton latauspistettä. Pyöräparkki talon sisäpihalla.
Bussipysäkki
500 m
Juna-asema
870 m
Lentoasema
22 km
Tämän toimitilan vuokraa

Ota yhteyttä
Ota yhteyttä
Yhteydenottolomake