Etusivu » Lappeenranta » Toimisto 178 m²

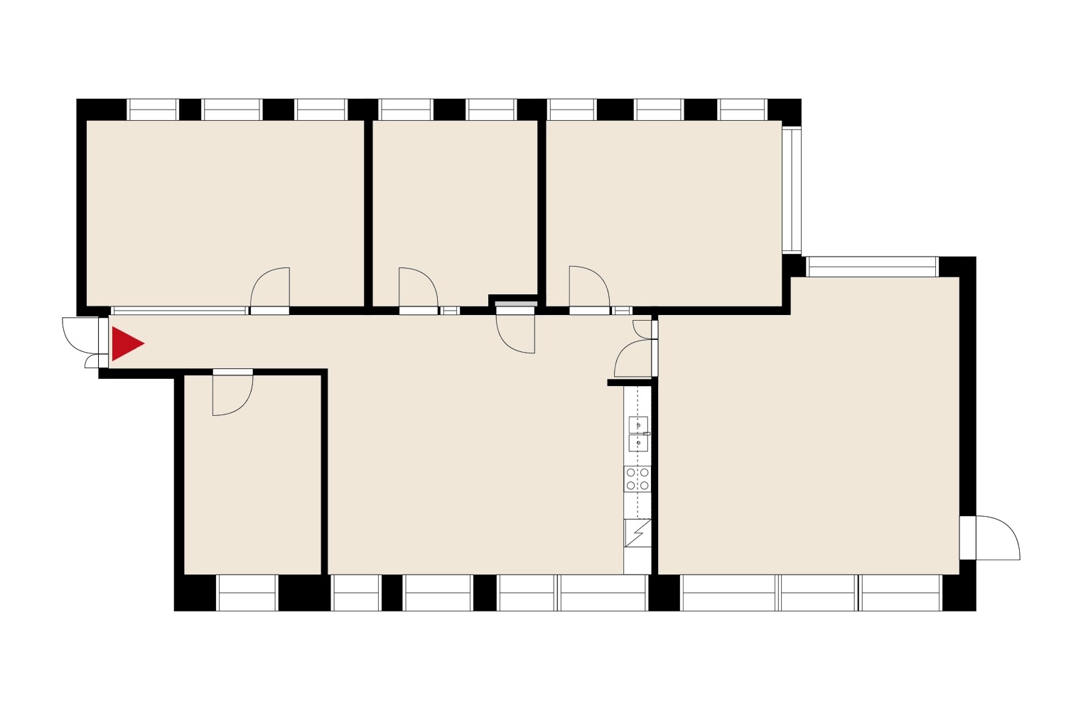
Toimisto 178 m² | 2. kerros

Kiinteistö: Kielo Lappeenranta – Tuotantokatu 2

Toimisto 72 m² Toimisto 178 m²

Kohdekuvaus

Skinnarilassa vuokrattavana toisen kerroksen muuntojoustava toimitila. Tila koostuu useammista toimistotiloista, jotka voidaan tarvittaessa vuokrata yksittäin tai suurempana kokonaisuutena. Yhdistettävissä viereisen huoneiston kanssa. Lappeenrannan kampus tarjoaa monipuoliset ja kattavat palvelut vuokralaisilleen. Ota yhteyttä ja kysy lisätietoja!

Toimitilan tiedot

Kauppatapa

vuokrataan

Käyntiosoite

Tuotantokatu 2, 53850 Lappeenranta

Tilatyyppi

Toimisto

Pinta-ala

178 m²

Kerros

2. kerros

Vapautuminen

Heti vapaa

Pysäköintipalvelut

  • Pysäköintialue

Pysäköinti

Talon pihalla on runsaasti pysäköintitilaa.

Linja-auto

190 m

Juna-asema

9,6 km

Lentokenttä

6,6 km

Tämän toimitilan vuokraa

Heidi Sipponen

Heidi Sipponen

Avainasiakaspäällikkö

Kielo

050 436 2129

heidi.sipponen@kielotoimitilat.fi

Ota yhteyttä

"*" näyttää pakolliset kentät

Kenttä on validointitarkoituksiin ja tulee jättää koskemattomaksi.