Vuokrataan:










Kohdekuvaus
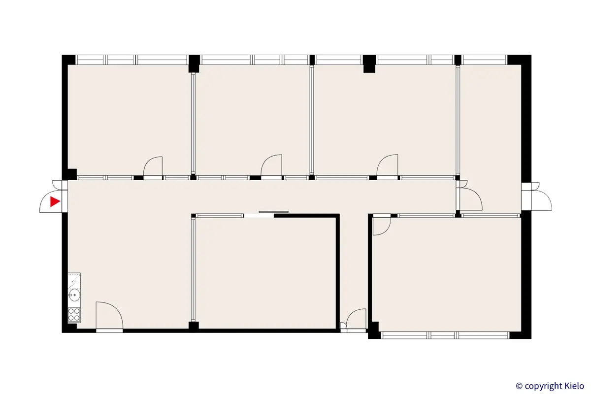
Vuokrattavana 2. kerroksen käytännöllinen ja rauhallinen monitoimitila, joka tarjoaa erinomaiset puitteet työskentelyyn. Valmiit huoneet takaavat työrauhan, ja tilasta löytyy myös oma keittiö.
Kiinteistössä on monipuoliset palvelut sujuvan arjen tueksi. Ensimmäisessä kerroksessa on aulapalvelu ja kokoustiloja, ja pohjakerroksesta löytyvät varastotilat, kuntosali sekä saunalliset sosiaalitilat. Rauhallinen sijainti luonnonläheisessä ympäristössä lisää viihtyvyyttä ja tarjoaa hyvät mahdollisuudet virkistäytymiseen työpäivän lomassa. Ota yhteyttä ja kysy lisätietoja
Toimitilan tiedot
Kauppatapa
Vuokrataan
Käyntiosoite
Ohjelmakaari 2, 40500 Jyväskylä
Tilatyyppi
toimisto
Pinta-ala
220 m²
Kerros
2. kerros
Vapautuminen
heti vapaa
Kiinteistön palvelut (kaupallinen)
aulapalvelu
vuokrattavia neuvottelutiloja
kuntosali
Lähialueen palvelut
ravintola
Pysäköintipalvelut
pysäköintialue
Pysäköinti
Kiinteistön pihalla on pysäköintialue, jolta löytyvät sekä henkilökunnan- että vieraspysäköintipaikat. Lisäksi tarjolla on sähköautojen latauspaikkoja ja kulunvalvottu pyöräparkki.
Raitiovaunupysäkki
147 km
Bussipysäkki
Alle 100 m
Juna-asema
3,9 km
Lentoasema
26 km
Tämän toimitilan vuokraa


Ota yhteyttä
Contact us
Contact form