Frontpage » Oulu » Toimisto 359 m²

Toimisto 359 m² | katutaso

Kiinteistö: Ideakulma

Toimisto 358.5 m²

Kohdekuvaus

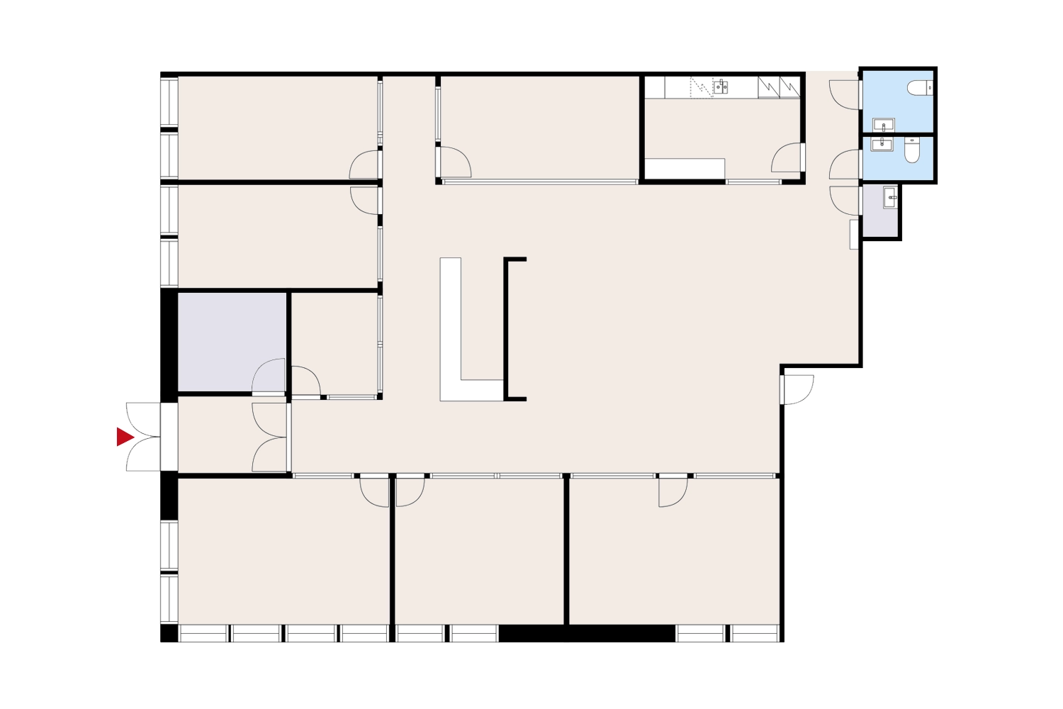
Vapautumassa valoisa katutason toimistotila hyvällä sijainnilla Perävainiossa. Toimitila koostuu yksittäisistä toimistotiloista ja avotoimistotilasta. Tilassa on lisäksi keittiö ja sosiaalitilat.

Toimitilan tiedot

Kauppatapa

vuokrataan

Käyntiosoite

Idealinja 13, 90410 Oulu

Tilatyyppi

Toimisto

Pinta-ala

358.5 m²

Kerros

katutaso

Vapautuminen

Heti vapaa

Pysäköintipalvelut

  • Pysäköintialue

Pysäköinti

Rakennuksen ympärillä on tilava piha-alue, jolla on tarjolla runsaasti lämmityspistokkein varustettu pysäköintipaikkoja.

Bus

230 m

Train station

5,5 km

Airport

12,1 km

Tämän toimitilan vuokraa

Saija Vilppola

Saija Vilppola

Junior Leasing Manager

Colliers Finland

046 875 2828

saija.vilppola@colliers.com

Ota yhteyttä

"*" indicates required fields

This field is for validation purposes and should be left unchanged.