Vuokrataan:





Kohdekuvaus
Vuokrattavana liiketila kaupungin ydinkeskustasta Kävelykadun varrelta. Erinomainen sijainti kaikkien palveluiden äärellä. Vieressä vehreä Kirkkopuisto, ja samasta korttelista löytyy Jyväskylän bussiliikenteen solmukohta.
Toimitilan tiedot
Kauppatapa
Vuokrataan
Käyntiosoite
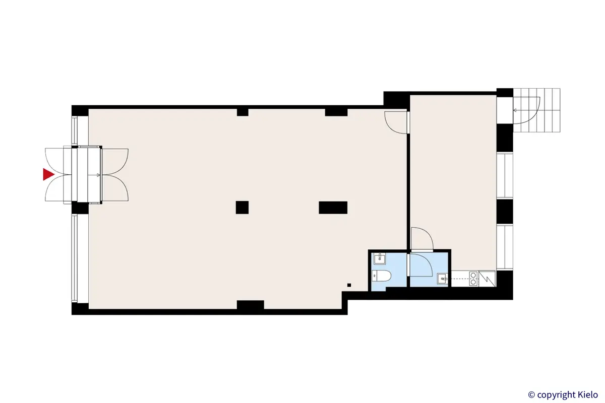
Kauppakatu 18 C, 40100 Jyväskylä
Tilatyyppi
liiketila
Pinta-ala
108 m²
Kerros
katutaso
Vapautuminen
heti vapaa
Lähialueen palvelut
ravintola
kuntosali
kampaamo/parturi
ruokakauppa
pesula
posti
kahvila
hotelli
lääkäriasema
Pysäköintipalvelut
pysäköintialue
Pysäköinti
Sisäpihalle kaavaillaan sähköautojen latauspistettä. Sisäpihalla myös pyöräparkki.
Raitiovaunupysäkki
145 km
Bussipysäkki
270 m
Juna-asema
780 m
Lentoasema
22 km
Tämän toimitilan vuokraa


Ota yhteyttä
Contact us
Contact form